
Residens på Stormen Konserthus
BAREDANS (Bodø arena for dansekunst), Stormen konserthus og Davvi - Senter for scenekunst har gått sammen om å ha en residens i Bodø i august /september 2026. Residensen vil gi muligheter til teknikk og oppfølging av teknikker, og få premiere under Bodø Biennale. Residensen retter seg mot danseforestillinger, som gjerne også jobber tverrkunstnerisk opp mot visuell kunst. Residensperioden avsluttes med premiere under Bodø Biennale 2026.
Under residensen stilles Lille Sal i Stormen Konserthus med tilhørende teknisk utstyr til disposisjon. Det vil være teknisk personell fra Stormen Konserthus tilgjengelig ved behov og i henhold til avtale. De vil også kunne bistå med å ferdigstille en teknisk rider av produksjonen slik den er ved residensens slutt.
I søknaden er det viktig at det redegjøres for hvordan en residens på Stormen Konserthus, med premiere på Bodø Biennale, vil være verdifullt for prosjektets kunstneriske utvikling.
Fasiliteter
I residensperioden vil Lille Sal i Stormen Konserthus være tilgjengelig 9 timer per dag, seks dager i uken. Stormen Konserthus stiller 1-2 teknikere til rådighet under residensen, samt teknisk utstyr tilhørende lille sal. Les mer om de tekniske spesifikasjonene til salen her: Tech spec – Dropbox
Stormen Konserthus ligger i Bodø sentrum. Bygget har trinnfri rullestoladgang på gateplan, og heis ned til Lille Sal, som ligger i kjelleretasjen. Handikaptoalett finnes tilknyttet til lille sal, samt flere steder på huset. Ta gjerne kontakt ved behov for tilrettelegging.
Reise, opphold og honorar
Ved tilbud om residens dekker Davvi – Senter for scenekunst lavpris innenlandsreise for inntil fire personer. Kostnader for ekstra personer eller annen reise må dekkes av kompaniet.Kunstnere som reiser fra utlandet må selv dekke reisen til Oslo med annen finansiering.
Davvi – Senter for scenekunst vil bistå med å finne residensbolig til kunstnere som kommer utenbys fra, og dekker overnatting for opptil 4 personer, med en makspris på 30 000 kr.
Det utvalgte prosjektet er selv ansvarlig for å skaffe ekstern finansiering for ytterligere kostnader knyttet til produksjonen.
Davvi - Senter for scenekunst vil gi en produksjonsstøtte på 1200kr dagen per pers i opp til 20 dager.
BAREDANS dekker inntil 20 000,- i spillehonorar for forestillinger.
Det utvalgte prosjektet er selv ansvarlig for å skaffe ekstern finansiering for ytterligere kostnader knyttet til produksjonen.
Søknadsfrist
Søknadsfristen er 10. September 2025, dette er for en residens i perioden 12. august til 04. september 2026. Maks 20 dager
Estimert svartid på søknadene er fem uker etter søknadsfrist.
Utvalgskriterier
Prosjekter blir valgt ut fra disse kriteriene:
-Prosjektet må ha behov for en residens, og prosjekter med behov for teknisk bistand vil bli prioritert
-Profesjonelle samarbeidspartnere
-Prosjekter med dans og visuell kunst sammen prioriteres
-Gjennomføringsevne
-Relevans
Det er en fordel å kunne vise til finansiering og residensopphold som er gjennomført eller planlagt i forkant av perioden for residens ved Stormen konserthus.
Bilde fra residensn til Ærlig talt - EKKO - Hymne til fjellet Foto: Audun Senes
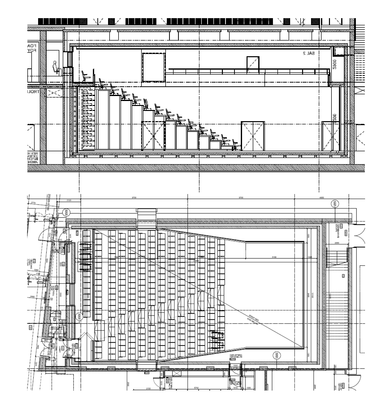
TechSpec Lille Sal
Maks 240 sitteplasser, avhengig av konfigurasjon. Lille Sal har variabel akustikk og et uttrekkbart setesystem. Den kan konfigureres for stående publikum, kaféstil sitteplasser, konferansesitteplasser eller spising. Lokalet er utstyrt med førsteklasses lyd- og lysutstyr og en høykvalitets 8k ansi lumen projektor og projeksjonsskjerm.
-
- 11,9m x 6,1m (W x D) flat floor
- 8,2m ceiling height
- 7,3m rigging height
- 10x motorized 250kg bars
- 5x fixed height bars at 7,3m
- The stage is surrounded by a technical gallery, height under gallery is 5,1m. Please refer to drawings.
-
- Two dressing rooms with kettle and refrigerator, for approx. 10 persons each
- Washing machine and dryer available
- Show relay system
-
- d&b Audiotechnic V-series, 4 top (flown) + 1 sub each side, Q10 front fills, D80 amplifiers
- Soundcraft Vi400 72ch FOH mixer, 48ch stagerack
- Pyramix native 48ch recording system
- 4x d&b M6 monitors
- 4x monitor channels, D80 amplifiers
- 8x channels of Shure Axient analog radio mic´s
- Good selection of standard mic´s and DI´s
-
- MA Lighting GrandMA2 light
- 84 ADB dim/switch channels
- 24x ETC S4 junior profiles 575W 25-50”
- 3x Martin Encore wash WRM EPS w/PC lens
- 21x Prolights ECL Fresnel TU w/barndoors
- 14x Robe LED wash 300W + 8x LED spot 600W
- 1x Robert Juliat Cricket 1200W follow spot
-
- DW Performance series drum kit w/ DW 5000 hardware (details on last page)
- Sabian cymbals (details on last page)
- Ampeg SVT Classic tube bass amplifier
- Ampeg 4x10” bass cabinet
- Markbass CMD 121H bass combo
- Fender 65 Delux Reverb guitar combo
- Vox AC15 guitar combo
- Steinway model D grand piano (1985)
-
- Panasonic PT-RZ970BEJ, 1920x1200, 3G/HD-SDI, 10000 AL DLP laser projector
- Draper motorized screen 2,67 x 4,27m, 16:10
- HDMI or SDI connection at FOH
-
- 1x 125A 400V CE outlet- 2x 63A 400V CE outlets
- 8x 16A 230V shuko clean power outlets for audio and video
- 2x 16A 230V shuko technical power outlets
-
- Black surround
- White cyclorama 9 x 7,5m
- White sharktooth 9 x7,5m